1. <dfn id="cgihn"></dfn>
  2. <dfn id="cgihn"></dfn>
    <menu id="cgihn"><acronym id="cgihn"></acronym></menu>
  3. <address id="cgihn"></address>
    1. <menu id="cgihn"></menu>
      3dshowind More

      炫之風更多

          位置:首頁>公司新聞>行業(yè)新聞

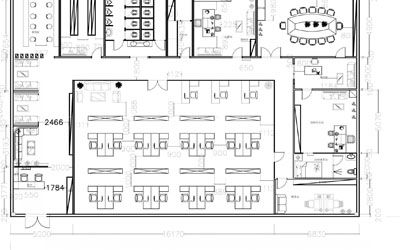
      展廳設計平面布置圖要怎么做

      2018-12-20

      展廳設計平面布置圖要怎么做?在解決這個問題之前,咱們先來了解一下展廳設計平面布置圖是什么?


      熟悉展廳設計或是室內設計的人對這個應該不陌生,展廳設計平面布置圖又叫展廳設計平面圖,就是將整個展廳的結構(門、窗、過道、展臺等等)布局情況用平面圖表示出來,平面圖是展廳設計中需要先進行確定的東西,平面圖確定好了才能出效果圖。

      展廳設計平面布置圖要怎么做呢?展廳設計平面布置圖是采用軟件來進行繪制的,一般多用CAD軟件來進行繪制,目前市面上也有非常多的CAD軟件以及相關教程,大家感興趣的話都可以上網(wǎng)搜索進行學習?;旧现灰獣褂肅AD軟件的,平面圖就能做出來,這個不是一個很難的東西。


      如果是想從事展廳設計這方面的工作的話,那自己可以先去學習CAD的使用,多進行練習,這樣在后期的工作中也能提升工作效率。如果是公司想做展廳,需要進行展廳設計的話,就不需要了解它是怎么做的了,直接找專業(yè)的展廳設計公司,所有的展廳設計平面布置圖和展廳設計效果圖等等都會給你做好。


      文章作者:炫之風  如有轉載請注明出處,違者必糾!

      在線客服
      40008 40058

      1. <dfn id="cgihn"></dfn>
      2. <dfn id="cgihn"></dfn>
        <menu id="cgihn"><acronym id="cgihn"></acronym></menu>
      3. <address id="cgihn"></address>
        1. <menu id="cgihn"></menu>
          豆花视频精品 | 四虎久久久 | 大尺度做爰啪啪高潮床戏电视剧 | 国产三级做爰在线播放五魁 | 大屌色在线视频 |